REZERVOVANÉ - 4i novostavba RD, pozemok 6á, Voderady
REZERVOVANÉ!
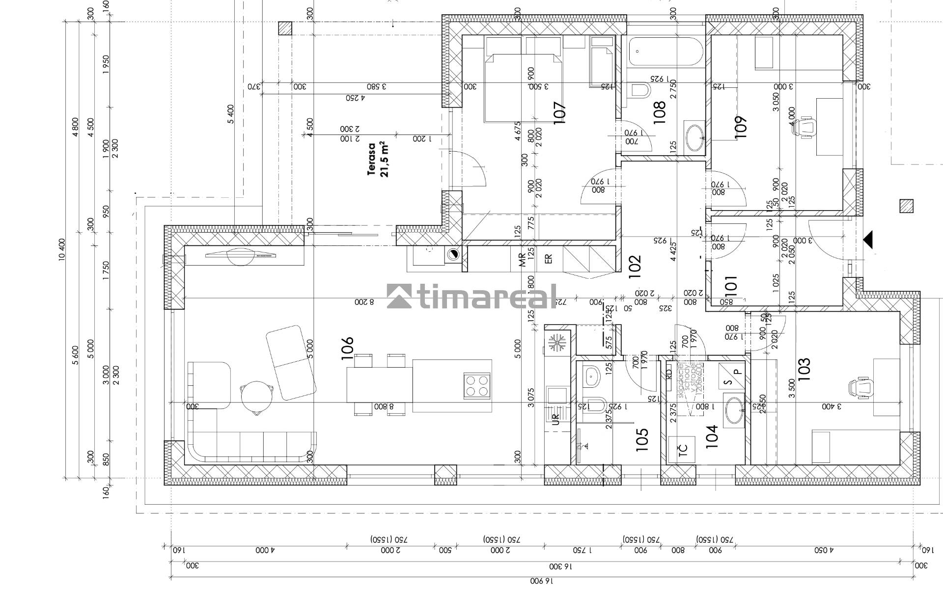
V exkluzívnom zastúpení ponúkame na predaj novostavbu 4i rodinného domu typ bungalov vo Voderadoch. Nachádza sa na rovinatom pozemku o rozlohe 605m2. Zastavaná plocha 166m2 (dom 141m2 + 25m2 terasy), obytná plocha 117m2, úložný priestor na povale.
Moderne a prakticky navrhnutá dispozícia: vstup, chodba, kuchyňa s presvetlenou jedálňou prepojená s obývacou izbou o veľkosti 46m2 a východom na terasu, tri samostatné spálne, 2x kúpeľňa s WC (z toho jedna privátna - vstup z manželskej izby), technická miestnosť.
Prestrešený vstup a prestrešená terasa. 100% overená kvalita, predáva sa v štádiu holodom. Stavané tradičnou technológiou s použitím certifikovaných materiálov, kúrenie podlahové.
Pozemok vzhľadom k veľkosti poskytuje dostatok priestoru na oddych a relax.
IS - voda, kanalizácia, elektrina, plyn, optika.
3D ohliadka: https://my.matterport.com/show/?m=gavw4Lr443j
Neváhajte nás kontaktovať - obhliadky možné 7 dní v týždni.
Odporúčame využitie balíka služieb ALL INCLUSIVE NAOPAK ktorý je poskytovaný bezplatne. Viac informácií o tejto službe na domovskej stránke prípadne osobne u ktoréhokoľvek z maklérov.
Naša spoločnosť pôsobí na trhu od roku 2004. Poskytujeme služby v oblasti sprostredkovania kúpy, predaja a prenájmu všetkých typov nehnuteľností. Ochotne Vám zabezpečíme dokumenty potrebné pre kataster nehnuteľností, servis pri vybavovaní hypotekárnych úverov, vypracovanie znaleckých posudkov a poistenie nehnuteľnosti prostredníctvom zmluvných partnerov. Naši makléri disponujú odbornými znalosťami, zodpovedným prístupom a preto sú zárukou serióznej, bezpečnej a rýchlej realizácie obchodu.
Neváhajte nás kontaktovať
Chcem si rezervovať obhliadkuĎalšie zaujímavé ponuky
rodinných domov v lokalite Voderady v Trnave na predaj
Cena v RK
148 m2
0,- €
230 m2
0,- €
128 m2
206.000,- €
103 m2
Cena v RK
95 m2
Poslať ponuku na e-mail
Dohodnúť obhliadku
Chcem získať najvýhodnejšiu hypotéku!
Spolupracujeme s profesionálmi a dokážeme vám vďaka tomu vybaviť najvýhodnejšiu hypotéku, nechajte si zaslať od nás ponuku.
Súhlas so spracovaním osobných údajov
Dotknutá osoba v súlade s príslušnými ustanoveniami zákona č. 18/2018 Z.z. o ochrane osobných údajov a o zmene a doplnení niektorých zákonov v znení neskorších predpisov (ďalej len ,,ZoOOÚ“) potvrdzuje správnosť a aktuálnosť svojich osobných údajov uvedených v kontaktom formulári. Dotknutá osoba týmto čestne vyhlasuje, že udeľuje prevádzkovateľovi svoj výslovný, slobodný, vážny a bezvýhradný súhlas so spracúvaním jej osobných údajov v rozsahu: meno, priezvisko, telefonický kontakt, e-mailová adresa na účel kontaktovania dotknutej osoby ako záujemcu o spoluprácu v informačnom systéme sprostredkovateľa ,,klienti“ počas doby 180 dní od udelenia tohto súhlasu. Dotknutá osoba má právo kedykoľvek odvolať tento súhlas so spracovaním osobných údajov rovnakým spôsobom, akým ho udelila. Odvolanie súhlasu nemá vplyv na zákonnosť spracúvania osobných údajov založeného na súhlase pred jeho odvolaním. Práva dotknutej osoby vymedzujú najmä §§ 19 – 30 ZoOOÚ. Práva a povinnosti sprostredkovateľa, ako prevádzkovateľa, vymedzujú najmä §§ 31 – 46 ZoOOÚ. Dotknutá osoba potvrdzuje, že sprostredkovateľ splnil svoju oznamovaciu povinnosť v rozsahu požadovanom ZoOOÚ. Dotknutá osoba berie na vedomie, že na zabezpečenie toho, že spracúvanie jej osobných údajov sa vykonáva v súlade so ZoOOÚ sprostredkovateľ prijal primerané technické, organizačné a personálne opatrenia zodpovedajúce spôsobu spracúvania osobných údajov, pričom zobral do úvahy najmä použiteľné technické prostriedky, dôvernosť a dôležitosť spracúvaných osobných údajov, ako aj rozsah možných rizík, ktoré sú spôsobilé narušiť bezpečnosť alebo funkčnosť jeho informačných systémov. Sprostredkovateľ bude s osobnými údajmi dotknutej osoby zaobchádzať a nakladať v súlade s platnými a účinnými právnymi predpismi.










